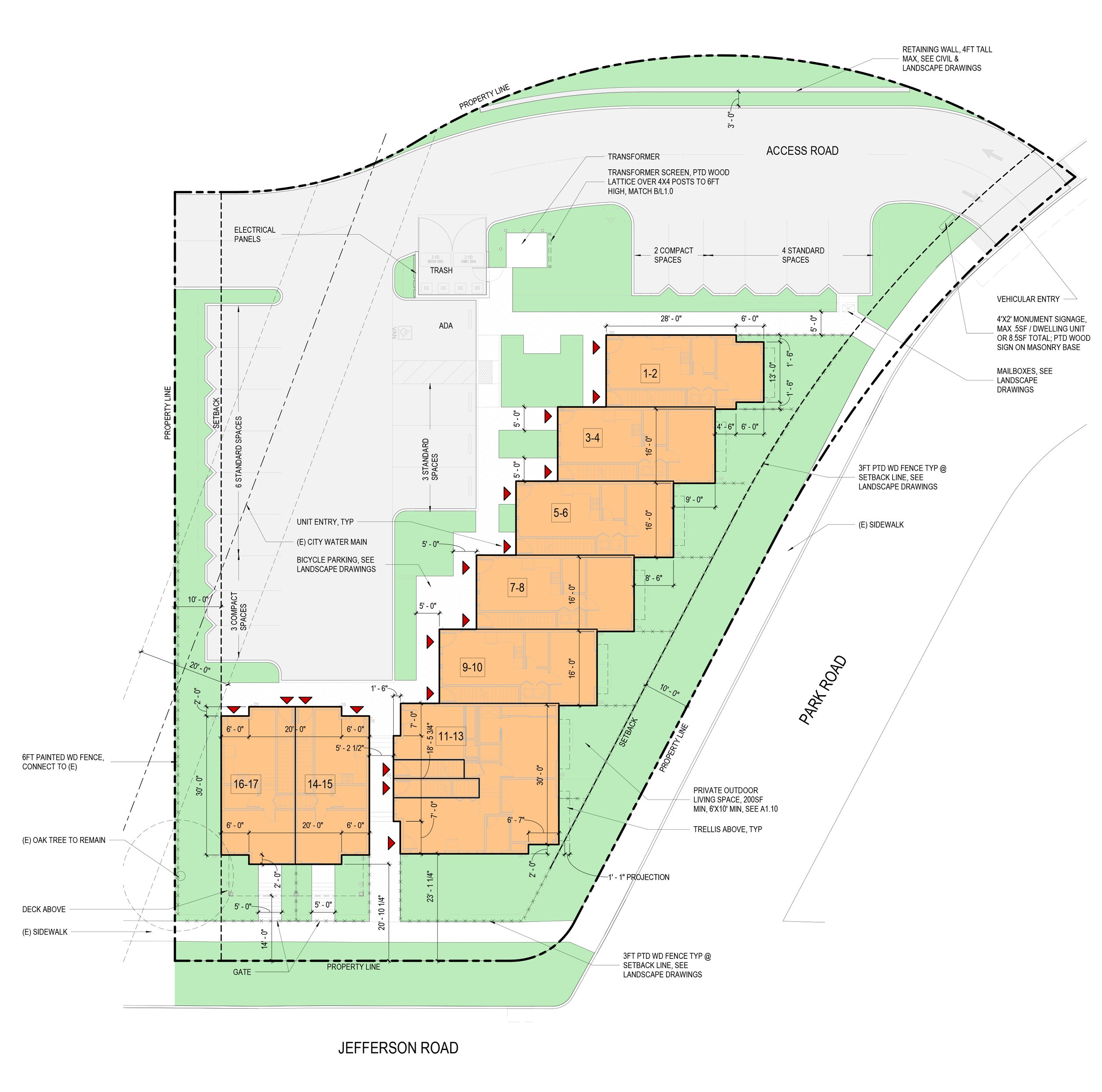
Park Road Apartments

Located in the historic Benicia Arsenal on a vacant lot fronting Park Road, a bi-pass from the Arsenal to the Industrial Park, this project consists of 17 new two and three bedroom apartment townhomes and flats. The project will provide on-site parking for the new apartments which face the Park and Jefferson street views to the bay. Construction scheduled to start in 2023…stay tuned.

Previous
Previous

West Texas Apartments

Next
Next

Girl Scout House