ECAP Food Pantry

Emeryville, CA

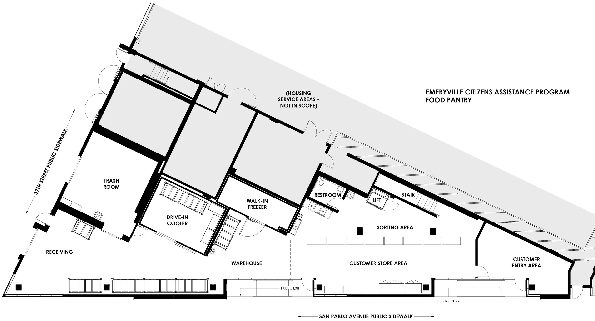
Since the 1970s, the Emeryville Citizen’s Assistance Program has provided grass-roots nutrition in the form of fresh donated food to all comers. Its longtime base of operations at San Pablo Avenue and 36th Street was developed into a mixed-use building offering many units of affordable housing, and the developer Resources for Community Development (RCD) offered the ground floor tenant space to ECAP for its future operations. After a period of pro-bono design services to ECAP, FOG Studio was offered the commission for full tenant improvement design services to be contracted directly under RCD.

The triangular site and narrow, jagged tenant space presented significant challenges to an operation reliant on warehousing and high-bay storage, as did the streetfront windows required by planning entitlements. Deliveries and heavy forklift use were concentrated on the north, while the south end required a careful orchestration of customer entry and food selection which minimized the development of long lines of people stretching out along the city sidewalks. Capitalizing on the double-height space available, the design includes offices and a boardroom on the second floor that are open to the operations below.

Previous
Previous

Big House Beans Oakland

Next
Next

Livermore Multi-Use Pavilion